Опис
Сталева піч OSLO Lacunza (Іспанія)
🔥 Сталева піч OSLO оснащена антиконденсатною системою, верхнім підключенням до димоходу та подвійним догоранням димових газів. Духовка з нержавіючої сталі розміром 553 × 253 × 355 мм дозволяє готувати їжу одночасно з обігрівом приміщення.
🧱 Внутрішня камера згоряння дубльована вермикулітом, що підвищує довговічність та теплоакумуляцію. Піч стійка до високих температур і вологості, не потребує технічного обслуговування та забезпечує ефективне опалення.
🔧 Додаткова опція: накладка для монтажу печі у куті +209 євро.
Технічні характеристики
🔥 Потужність
Діапазон номінальної потужності: 8–15 кВт
Номінальна ефективна потужність: 12 кВт
⚙️ Ефективність
ККД: 87 %
Клас енергоефективності: A+
🏠 Опалення
Об’єм нагрітого повітря: 256 м³
Площа обігріву: 120 м²
🪵 Паливо
Максимальна довжина дров: 60 см
Витрата деревини (бук, при номінальній потужності): 3,1 кг/год
🌡️ Димар
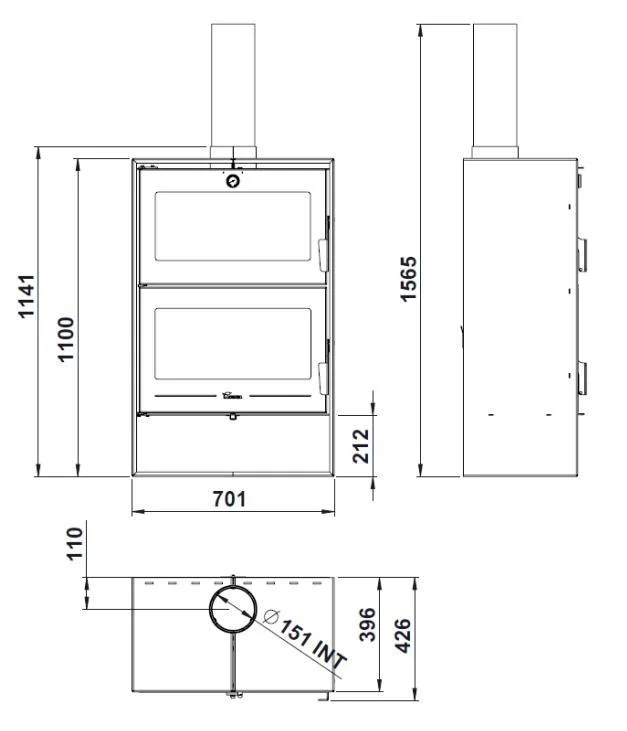
Діаметр підключення димоходу: 150 мм
Температура в димоході: 154 °C
Рекомендований тиск: 12 Па
Тип підключення: верхнє
📐 Габарити та вага
Зовнішні розміри (Ш × В × Г): 700 × 1100 × 400 мм
Розміри камери згоряння (Ш × В × Г): 630 × 220 × 280 мм
Ширина печі: 70 см
Висота печі: 110 см
Вага: 160 кг
🧺 Додатково
Об’єм зольника: 1,5 л
Матеріал корпусу: сталь
Подача повітря ззовні: ні
Вентилятор: ні
Гриль: ні
✅ OSLO Lacunza — надійна сталева піч із духовкою, високою ефективністю та продуманим дизайном, яка забезпечить комфортне опалення і приготування їжі одночасно.





Оплата частинами
Купити в кредит
Доставка БЕЗКОШТОВНО
Гарантія
Сервіс



